MENU
建築調査・建物診断
Sample Page
建築調査・建物診断
Sample Page
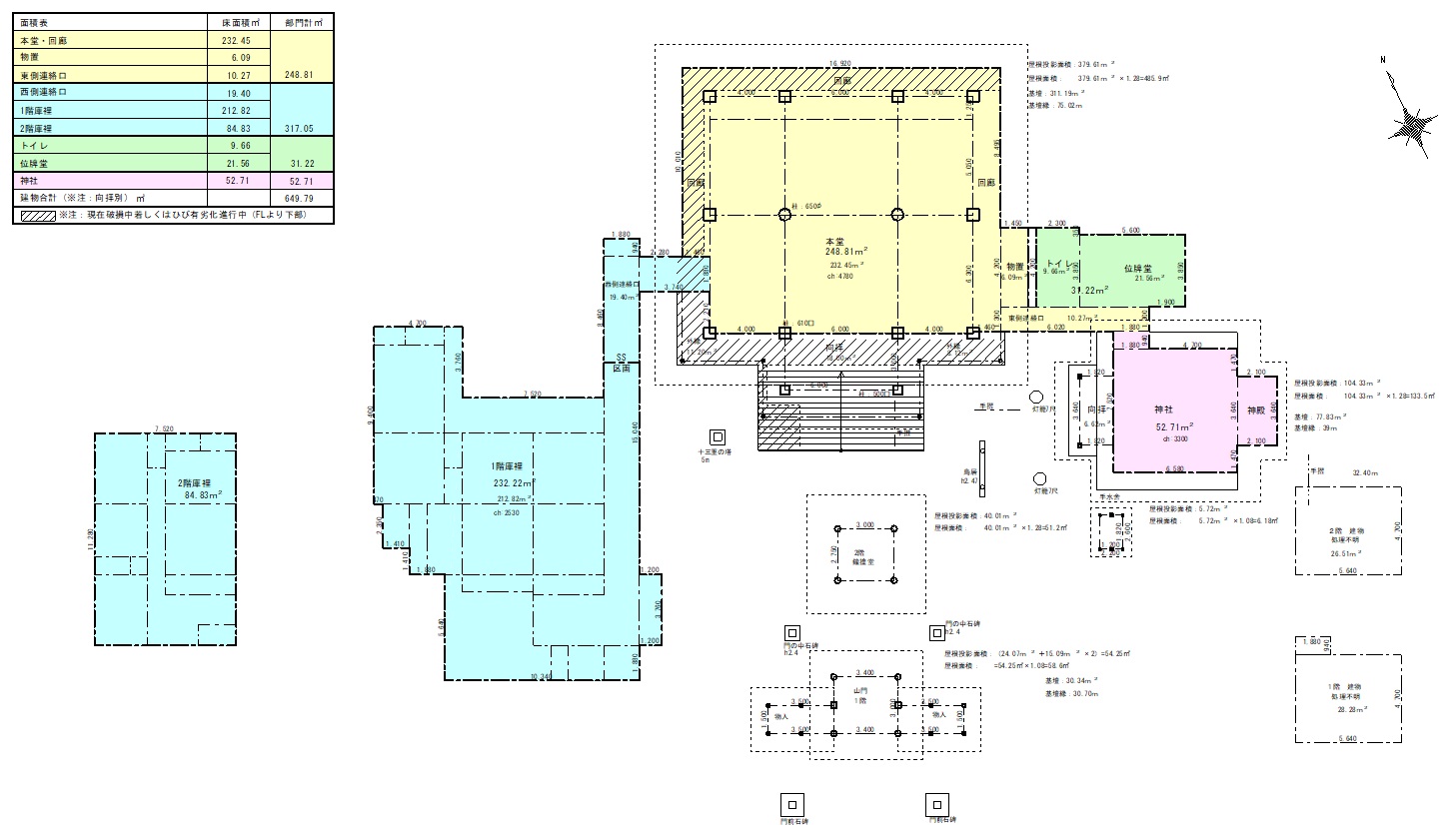
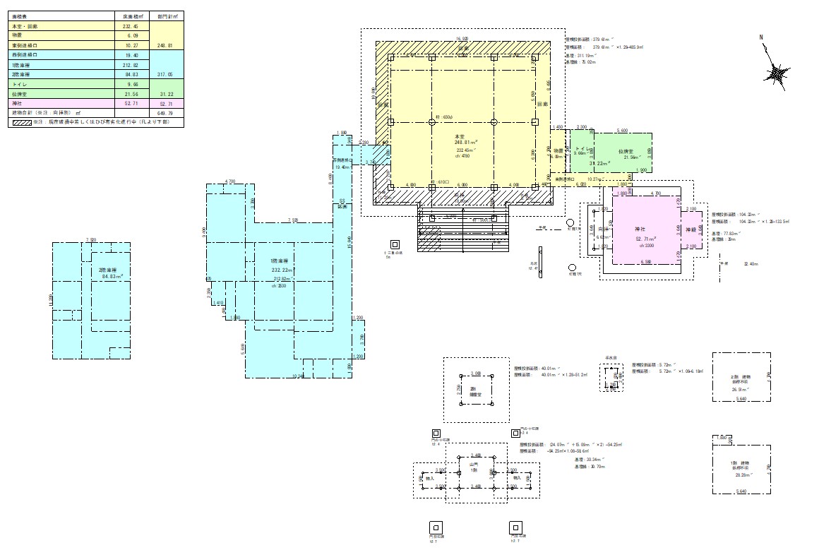
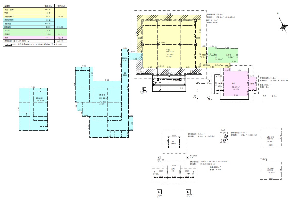
神社仏閣・住宅・小規模ビルの現況調査行います。
高所カメラ・ドローン等による写真撮影及び平面図(単線)や求積表が作成できます。
Uncategorized
Hello world!
Uncategorized
Hello world!
Welcome to WordPress. This is your first post. Edit or delete it, then start writing!
2026年3月30日
1
閉じる